
廣州恒爾電子設備有限公司
3 年
白金會員
白金會員
已認證
撥打電話
獲取底價
提交后,商家將派代表為您專人服務

廣州恒爾電子設備有限公司
白金會員
已認證
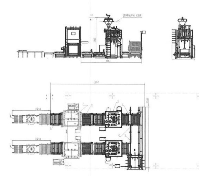
全自動噸袋包裝機提速方案:鋰電池材料、化工化學粉劑包裝行業顯著提升生產效率
恒爾 2023/08/11 | 閱讀:1710
產品配置單: 方案詳情:
客戶主要面臨的包裝問題是原始包裝精度不穩定、袋子外部的粉塵污染較為嚴重、電子吊秤的復檢過程較為繁瑣、包裝車間的粉塵濃度較大、300L料倉的物料堵塞嚴重、物料包裝機在計量后的袋內含氣量過大,需要進行二次拆包排氣,增加了勞動強度、包裝機的碼垛對高度有要求,需要通過人為調整來滿足條件、包裝袋的凈重每個都有差異,差距可達 200g,客戶是根據總重(袋子重量和物料凈重之和)來確定重量標準的、需要自動供應托板、托板上方需要放置一張紙皮、真空封口機可以進行測試,以驗證是否能通過真空封口機實現袋子物料高度的保證、噸包需要兩套、所有內、外設備都要避免使用銅、鐵、鋅等金屬物品。
下載本篇解決方案:
相關產品 更多
相關方案 更多
全自動噸袋包裝機整線應用方案實例
新能源原材料包裝
2024-11-23
噸袋包裝抽真空封口機之升降雙開門封口方案
新能源原材料包裝
2024-08-30
噸包整垛整形方案-加高型五面整形機
新能源
2024-08-05
恒爾全自動疊包機-解決人工疊包難題
新能源原材料包裝
2024-06-05
|
虛擬號將在 秒后失效
使用微信掃碼撥號